DONNEZ FORME À VOS PROJETS ARCHITECTURAUX
15 années d’expérience en Dessin d’Architecture de bâtiments et management de projets
Zenaïs transforme les dessins à main levée, les plans annotés en plans et visuels 2D/3D pour tous types de bâtiments individuels

Production de plans 2D
Modélisation et aménagements projet 3D
Production de vidéo 360°
POURQUOI FAIRE APPEL À ZENAÏS
Zenaïs offre une vraie alternative à l’embauche d’un dessinateur à temps plein
Vous manquez de temps
Vous rencontrez un surplus d’activité temporaire
Vos équipes en place sont débordées
La compétence n’est pas présente en interne
ILS M’ONT FAIT CONFIANCE

Nous avons missionné Estelle BUSSY pour la réalisation des plans et l’aménagement de nos nouveaux bureaux. Estelle a rapidement saisi nos besoins, nos goûts, et a été force de proposition afin de nous concocter un espace chaleureux et moderne, idéal pour recevoir nos clients dans des conditions extrêmement agréables!Elle a su faire face à de…

Nous avons travaillé avec la société ZENAIS, représentée par Mme BUSSY, à plusieurs reprises, depuis 2017, et sur des projets différents.Nous sommes très satisfaits de la qualité de son travail, de son sérieux et de sa réactivité.Madame BUSSY sait s’adapter aux besoins de son client, que ce soit en terme de budget et/ou de délai.Nous…

Estelle a répondu à ma demande de mise au propre de relevé très rapidement. Elle a dessiné les toutes les façades de mon projet de ravalement sur Autocad. Elle a ensuite fait plusieurs propositions de mise en couleur selon les indications que je lui avais données. Tous ces documents m’ont servi de base de travail…

Grand professionnalisme et un travail parfait caractérisent Zenais.Merci beaucoup.

AC2R travaille depuis bientôt 2 ans avec Zenais et nous sommes très content du travail fourni. Estelle rend toujours un travail très appliqué et très soigné et dans des délais très courts.




MES PRESTATIONS
Plan d’architectes et architectes d’intérieur
Aménagement d’espaces intérieurs / Visuels 3D
- modélisation 3D (vues intérieures / extérieures) pour présentation à vos clients
- réalisation d’image photo-réalistes
Plans techniques entreprises de Second oeuvre
Vidéos 3d
Promoteurs immobiliers
- Réalisation d’appartements témoins : aménagements d’espaces / rendus 3D
- Réalisation de vidéos 360° de l’appartement témoin
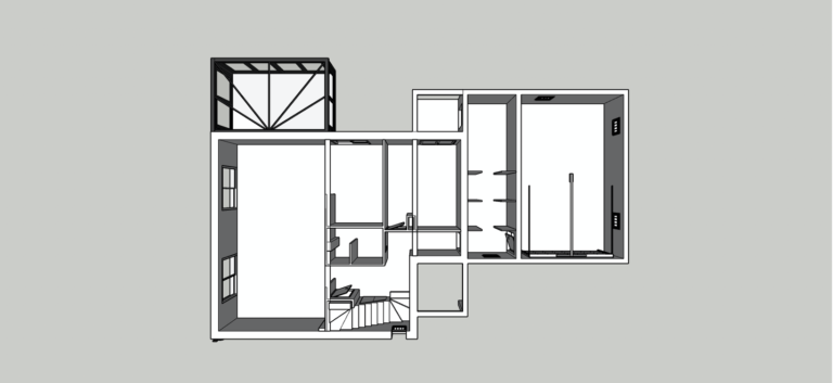
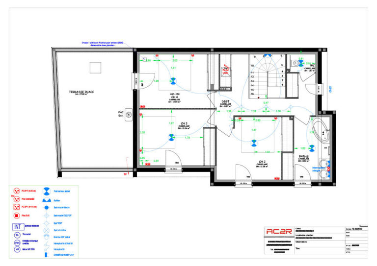
Exemple de réalisations
Allez à l’essentiel, oubliez le reste, ZENAIS s’occupe de tout.
06 09 25 90 45

Estelle BUSSY
Ingénieur généraliste et dessinatrice en architecture de bâtiment
Pendant plus de 15 ans, j’ai travaillé dans le Conseil en Management de projets et particulièrement dans le domaine de l’assistance à maîtrise d’ouvrage.
J’ai participé au cours de ma carrière à la création et au suivi de nombreux ouvrages d’art en France et en Europe où j’ai pu affûter mon expertise auprès des acteurs qui œuvrent à la réalisation de projets complexes.
De ces expériences et des rencontres avec un grand nombre d’architectes, j’ai identifié que leurs pics d’activités avaient un impact direct sur la satisfaction de leurs clients et sous-traitants, pics d’activités qui ne permettaient cependant pas l’embauche de collaborateurs à temps plein.
C’était le point de départ de la création de ZENAIS.
MES OUTILS





MON ACTUALITÉ
CONTACT INFOS
6 chemin des grandes terres – 69130 ECULLY
06 09 25 90 45
contact@zenais.fr

LAISSEZ-MOI UN MESSAGE
Un projet, une question, je vous répondrai dans les plus bref délais…














