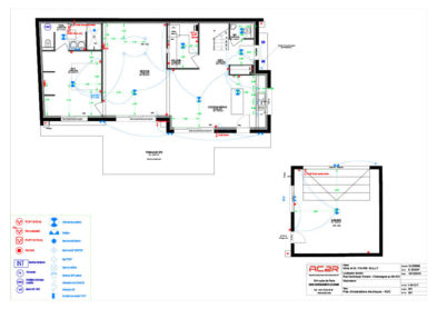
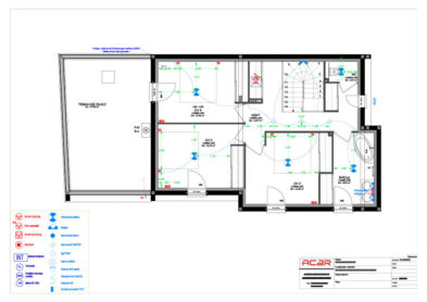
QUELQUES DETAILS
Client : AC2R – ALARME – VIDEO – CONTROLE D’ACCES – ELECTRICITE – DOMOTIQUE
Date : décembre 2019
Projet : Installations électriques – maison de 2 niveaux
Objet : Plan 2D
A partir des plans annotés transmis par le client, j’implante dans le fichier .dwg, les installations électriques souhaitées avec la typologie et l’emplacement précis pour mise en œuvre par les entreprises électriques.




