QUELQUES DETAILS
Client : Particulier
Date : octobre 2022
Superficie : Insertion meuble dans chambre à coucher
Objet : modélisation / rendus 3D / vidéo
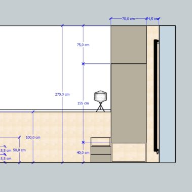
A partir d’un croquis transmis par mon client, j’ai modélisé la maquette 3d sous sketchup et réalisé des plans cotés poru le menuisier.
A l’aide d’Enscape, je réalise des visuels pour permettre au client final de se projeter dans le lieu de façon plus réaliste.






